Little Joe-II Pages

Loading...
Loading...
Loading...
Loading...
Loading...
Loading...
QTV
A-001
A-002
A-003
A-004
PA-1
PA-2

Scale Main
Little Joe Main
Article
Drawings
Photos #1
Photos #2
Reports
George's Models
Tom's Models
Kits

Little Joe II Drawings
by George Gassaway & Tom Beach

The following Little Joe-II Drawings were mostly done by George. Some portions were done by Tom. The Pad Drawings were entirely Tom's.

Most of these drawings were in the May/June and July/August 1991 issues of American Spacemodeling Magazine (The NAR's magazine name before Sport Rocketry).

Navigation links for this page:

Whole VehicleDrawings

QTV at 1/100 scale

A-001 at 1/100 scale

A-002 at 1/100 scale

A-003 at 1/100 scale


A-004 at 1/100 scale


12-50 Series (QTV, A-001) at 1/150
Above at 1/100 scale

12-51 Series (A-004, A-003, A-002) at 1/150
Above at 1/100 scale


A-004 at 1/50 scale

A-004 rotated 45 degrees (1/50)

A-004 at 1/32 scale

Back to top

CombinedDrawings

A-001 at 1/100 scale

A-002 at 1/100 scale


1/39.5 Scale 1:1 Workshop Drawing for FAI Scale Data Pack
This is a LARGE GIF, download as a File

Back to top

Little Joe-IIMain Body

QTV/A-001         A-002         A-003/A-004
Three Body types used, at 1/50 scale

Original General Dynamics/Convair Drawing
This a very large GIF, download it as a File

Back to top

Fins, Fairings,and Configuration Details


12-51 Series Fin at 1/32 scale

Chart of Configuration Details for all Five Missions

Back to top

Apollo BPC/LES ,CM, and SM

BPC/LES

Service Modules A-001 thru A-004
(for QTV see 12-50 series drawing)


BPC Details & Roll Pattern

Additional BPC & CM Details

Back to top

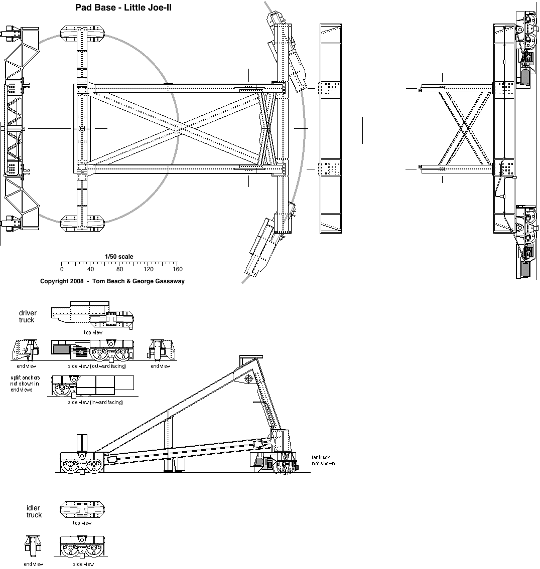
Launch Pad -By Tom Beach unlessotherwise noted


Pad by Tom Beach, Little Joe by George Gassaway

Pad Base Assembly


Pad Platform

Pad Tower


Pad Gratings Above at 1/10 Scale

Back to top

Back to SCALE
Back to Little Joe Main