|
|
| Slide-Wing Rocket Glider The Stiletto Series of Slide-Wing Rocket Gliders have been made in sizes ranging from 1/2A to D size. To see the Stiletto-B and Stiletto-C versions, go to the Contest Plans Page. | |
|
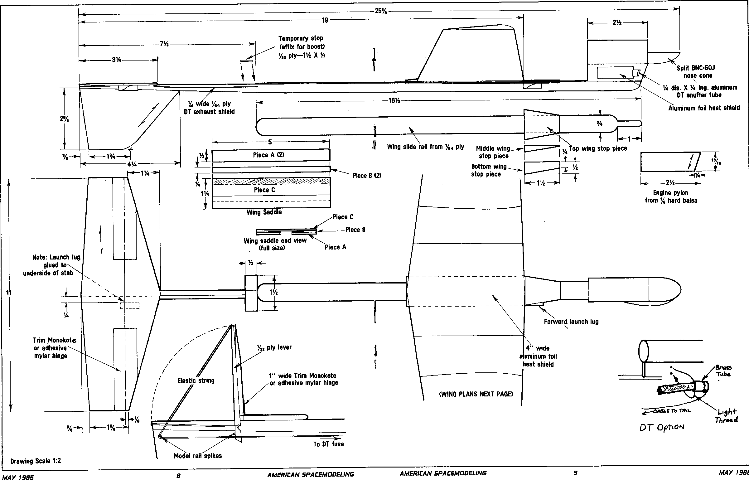
The Stiletto-D plan was printed in the July 1984 issue of the "Impact" newsletter, and the May 1985 issue of the NAR's American Spacemodeling Magazine (Now Sport Rocketry Magazine). The plan and article from American Spacemodeling is used here with permission. The plan printed in American Spacemodeling was redrawn by John Pursley With NARAM-42 holding D R/G, and no doubt many meets that will hold D R/G as well for practice before NARAM, this plan is being posted on the web for reference by those who want to get some ideas on how to build a similar model or even an exact copy. The main plan was printed in an 11 x 17 layout. It is included at the top of this web page. It was originally drawn at 1/2 scale but it is left to you, the computer user, to work out the actual size as printed or as appearing onscreen (It was scanned at 150 DPI). The written article that went with the plan is included as a GIF file. Print it out, choosing whatever options you need to make it print at maximum size on one page. It'll be somewhat more readable that way than onscreen. The wing was built-up as per the method I used for building R/C RBG's at the time, 1983-84. An alternative to a built-up wing would be to use medium 1/4" balsa or light 3/8" balsa for a solid wing, along with a lot of carving and sanding to shape. As pointed out by Andy Eng, you could build a solid-wing version first .And if you like what you see when you fly it, but want to get more performance then you could make a built-up lighter version of the wing and swap wings easily. The Stiletto-D can fly on a D12 but it is "hot". It flew best on a D7, which was an expendable short version of the E6. But the D7 stopped production by the latter part of the 1980's. Now, the D7 reload for the 24mm "RC" casings is virtually the same as the original D7 as far as thrust curve, but aside from running the risk of losing the reload casing a person would have to come up with some means to trigger the wing to slide, due to the lack of an ejection charge. Lacking the old D7, the motors choices are less than ideal. Either a D12-3, or a C10-4. I'm not too comfortable with the Stiletto-D flying on a D12 to begin with, once one shredding a built-up wing although it was using a crashed R/C model's wingtips for the wing panels and it was therefore built lighter/weaker than a purpose-built Stiletto-D wing. A D10 will cause the model to boost even faster and undergo greater stress. Yes, it has a lower average thrust than a D12 but the thrust curve is a regressive type that results in much more acceleration in the early part of the burn than a D12, producing a higher maximum velocity than a D12. But a strong enough Stiletto-D on a D10 would be a pretty potent combination if it boosts straight enough. November, 2008 update notes: And interesting option would be to use a D7 reload, and an onboard timer to fire an ejection charge. Another interesting option would be to convert the model to rudder-only R/C, usng some of the very small and light radio gear in existence today. It could boost on a D7, and have the rudder servo set to trigger the wing to slide forward when you give say full left rudder. | |
|
|